Мирский замок, этот «ярчайший средневековый цветок», недавно восстановленный на радость туристам и всем жителям Белоруссии, — поистине сказочное сооружение. Это замечательный памятник белорусской национальной культуры, аналогов которому не встретишь в Прибалтике, Польше или России. Наряду с дворцом Радзивиллов в Несвиже, Мирский замок служит настоящей визитной карточкой Беларуси. Во многом благодаря этой уникальной постройке местечко Мир теперь знают во всем мире.
Мирский замок поражает своим нарядным, торжественным обликом и гармоничной связью с природой, а его стены скрывают богатую историю. В этой заметке мы расскажем об истории замка в Мире и узнаем, какие метаморфозы он претерпевал снаружи и изнутри при смене владельцев и архитектурных эпох.
Загадка Мирского замка: Когда и зачем строился замок
Может показаться, что сначала появился замок, и только потом вокруг него поселились люди. На самом деле же деле поселок Мир древнее замка как минимум на полтора столетия (см. заметку об истории местечка).
Как известно из истории местечка Мир, в XVI веке эти земли перешли к Юрию Ильиничу (ум. 1526) из достаточно могущественного и зажиточного шляхетского рода Ильиничей. Его-то и надлежит считать основателем Мирского замка. Мирский замок был заложен его по распоряжению в 1520-х годах (по другим данным — в 1506-1510 годах [17]).
Юрий Ильинич в течение более двадцати лет вел судебные тяжбы за право обладания Мирскими имениями, которые завершилось в пользу Ильиничей только в 1522 году, так что возведение Мирского замка, видимо, всё-таки началось уже после урегулирования этих споров [5]. На то, что Мирский замок начал строиться не раньше 1520-х годов указывает еще и тот факт, что в 1524 году неподалеку от Волковыска был сооружен костёл Святого Михаила, пластика архитектурных деталей которого очень напоминает архитектуру Мирского замка [5].Причина столь разительного сходства проста: основатель костёла был женат на племяннице Юрия Ильинича, и родственников связывала масса имущественных дел [20]. Первое письменное упоминание о Мирском замке относится к 1531 году и содержится в судебных актах по поводу спора между сыновьями Юрия Ильинича [24].
Мирский замок стал первым случаем строительства на землях Великого княжества Литовского (ВКЛ) такой мощного фортификационного комплекса частным владельцем [2]. До XVI века в государстве частных каменных замков не строили: даже очень состоятельные феодалы обычно обходились деревянными укрепленными дворами [1]. Имевшиеся каменные замки принадлежали великим князьям или городским крепостям, то есть имели не частное, а общегосударственное значение.
Так с чего вдруг маршалок господарский и наместник лидский Юрий Ильинич решил возвести в Мире столь мощное каменное фортификационное сооружение? Какими мотивами руководствовался магнат (далеко не самый богатый и не самый влиятельный в ВКЛ), на склоне лет принимая решение о начале столь грандиозного строительства?
Причины для строительства Мирского замка, разумеется, имелись. Но у современных исследователей нет единого мнения по этому интригующему вопросу.
Во-первых, известно, что в начале XVI века в данном регионе случались набеги крымских татар, и Ильинич, возможно, был этим фактом обеспокоен. Соответственно, некоторые ученые объясняют возникновение Мирского замка вполне понятным желанием хозяина защититься от внешних врагов, включая его собственных соседей — враждебные феодальные группировки [2]. Во-вторых, строительство замка несло с собой целый ряд других, не только военных, но и экономических преимуществ и возможностей. Например, под защитой замковых стен устраивали торг (проведение сделок купли-продажи), проводили праздничные ярмарки, строили трактиры [6]. В-третьих, существовала и еще одна немаловажная мотивация для строительства замка: соображения престижа, желание самоутвердиться. Род Ильиничей был не особенно известен, поэтому чтобы добиться признания, требовалось сотворить нечто неординарное [26]. Не исключено, что Юрий Ильинич стремился получить графский титул Священной Римской империи, одним из условий для чего было наличие в собственности каменного замка. Впрочем, титул графа удалось получить только его внуку (в 1555 году). Печать Юрия Ильинича младшего, «графа на Мире»:
Резюмируя всю эту дискуссию, отметим, что среди современных историков всё-таки преобладает «статусная», а не военная версия. Несмотря на неприязненные отношения Ильиничей с некоторыми феодалами [2], эпоха постройки замка оценивается в целом как спокойная [20]. Более того, замок был построен не на возвышенности, а на равнине, так что вряд ли предполагалось использовать его в сугубо оборонительных целях. Дальновидные владельцы замка, конечно, не исключали мысль о защите своего имения: неслучайно же появилось такое множество бойниц! Так что в случае надобности замок мог дать ощутимый отпор захватчикам. Но множество декоративных деталей в оформлении фасадов говорит о том, что «игра в замок», репрезентативные функции стояли для владельцев не на последнем месте.
Строительство Мирского замка: Что успели Ильиничи
Как установили археологи, на месте, где Ильиничи начали строить замок (на равнине, где протекает речка Миранка), находилось более раннее поселение (деревянная феодальная усадьба), сгоревшее во время сильного пожара во второй половине XV века [1]. Археологами были обнаружены остатки глинобитной печи и множество архитектурно-декоративной керамики XV века ([8]; [10]).
Замок возводили жители Мирщины и крестьяне других владений Юрия Ильинича. По обычаю того времени необходимые для замка строительные материалы брались с собственных кирпичных заводов, которые были построены в деревнях Пропаши и Бирбаши. Известь доставлялась из Сверженя [17]. Полевой камень обтёсывали и сортировали по размеру и цвету.
Первый этап строительства замка предположительно продолжался с 1522 по 1526 год, когда были возведены (хотя и не полностью) стены и башни [1]. Строители сделали на месте бывшего поселения насыпь из глины, песка и камня, где и возвели мощный замок. На первом этапе было возведено пять башен, соединенных стенами (эта композиционная схема впоследствии уже не менялась). Четыре башни расположились по углам, а пятая, надвратная, башня была устроена в середине западной стены, обращенной к дороге на Вильню. Именно в этой башне находился единственный вход в замок.
Башни далеко вынесены за периметр стен, образующих в плане почти правильный квадрат с длиной стороны в 75 м. Фундамент замка залегает на глубину 4–5 метров [8].
Башни строились таким образом, чтобы можно было вести фланговый огонь и поражать противника на подступах к стенам. По тем временам это была весьма прогрессивная схема обороны [24]. Каждая башня имела высоту около 23-25 метров (при высоте стен в 10 метров) и состояла из пяти боевых ярусов с бойницами и сложной системой переходов.
Из башен лучше всего сохранилась юго-западная. Она имела полуподвальное помещение с бойницами нижнего боя, а на верхних ярусах были бойницы для ведения фронтального и бокового огня по неприятелю из орудий и малых пушек-гаковниц. Часть этих бойниц впоследствии превратили в большие оконные проемы. Между ярусами башни находилась винтовая лестница, которая вела на чердак, откуда можно было через навесные бойницы-машикули доставлять врагу всевозможные неприятности: кидать камнями, лить кипяток или смолу.
Толщина замковых стен у основания достигала 3 метров [2], а вверху — чуть более 2 метров [1]. Стены замка имели три боевых яруса. Нижнюю часть всех четырех стен прорезали бойницы подошвенного боя (по пять-девять в каждой стене) [17]. Средний ярус боя проходил в середине каждой стены на высоте около 8 метров от земли и имел вид галереи с полукруглым сводом и многочисленными бойницами в стенах. Наконец, верхний ярус представлял собой боевую площадку, размещенную на самом верху стены и прикрытую парапетами с бойницами для ведения огня из луков, арбалетов и мушкетов [17].
План-реконструкция первого этажа Мирского замка на начало XVI века (В. Калнин) [5]:
В первой половине XVI века в замковом дворе построили одноэтажное жилое здание, а вскоре к восточной и южной стене пристроили одноэтажный корпус с подвалом (в какой-то степени прообраз позднейшего дворца, только дворец построили вдоль восточной и северной стен). Новое здание заняло значительную часть замкового двора [17].
При строительстве Мирского замка была использована смешанная трехслойная кладка: наружная и внутренняя часть стен («щеки») была выложена из кирпича с вкраплением камня-валуна, а пространство между ними (забутовка) заполнялось мелкими камнями и кирпичным боем, залитым раствором.
Вид Мирского замка в начале XVI века (реконструкция Д. Бубновского) [5]:
Основатели и первые владельцы Мирского замка Ильиничи не смогли завершить строительные работы. Словной злой рок преследовал фамилию: всего за сорок лет их род по мужской линии угас.
Мирский замок при Радзивиллах: Ренессансные вкусы
Незадолго до своей смерти в возрасте около 35 лет внук основателя замка бездетный Юрий Ильинич — младший (ок. 1535 – ок. 1569), сын Ильинича Щасного и Софьи Радзивилл, завещал Мирское графство князю Николаю Христофору Радзивиллу по прозвищу «Сиротка» (1549-1616).
Николай Сиротка, знаменитый государственный деятель Великого княжества Литовского, был двоюродным братом Юрия, сыном его опекуна и воспитателя Николая Радзивилла Чёрного.
С 1568-1569 года и на протяжении последующих столетий (до 1812 года) Мирский замок принадлежал представителям богатейшего и влиятельнейшего рода Радзивиллов.
Князь Николай Христофор Радзивилл Сиротка прославился как «князь-строитель» Несвижа и Мира, а также первый в Беларуси путешественник и паломник. При Радзивилле Сиротке Мирский замок претерпел существенные изменения. Получив права собственности на земли Мирского графства, он решил сделать Мирский замок одной из своих резиденций и довершил строительство замково-дворцового комплекса Мира.
По распоряжению Сиротки в конце XVI века – начале XVII века вдоль северной и восточной стен замка возвели эффектный Г-образный трехэтажный дворец в духе ренессанса. Внешними стенами дворца стали замковые стены. Часть бойниц замуровали, а на уровне второго и третьего этажа сделали большие оконные проемы [17]. Также были перепланированы три угловые башни (юго-восточная, северо-восточная и северо-западная). Вдоль южной и западной стен появились одноэтажные подсобные помещения [1].
В передней части замковых ворот располагалась предохранительная решетка (герса), которую опускали через специальный проем. В подземелье центральной въездной башни размещалась тюрьма. Над воротами на втором этаже башни при Радзивиллах появилась замковая часовня (каплица святого Христофора), а на третьем установили часы [20]. Из часовни пробили выход прямо к жилым покоям на север и боевым галереям на юг. На незаконченной южной стене соорудили новую боевую галерею и переделали старую западную. Так были «кругом палат построены каменные переходы», как отметил посетивший замок стольник Петра I П. А. Толстой [24].
Не исключено, что работами на этом этапе руководил Дж. М. Бернардони — итальянский архитектор, много строивший в радзивилловском Несвиже. По его же проекту, как считается, создан костёл в Мире, расположенный недалеко от замка и имеющий с ним общие черты. Сохранилось в истории и имя другого зодчего: известно, что в 1580-х годах Сироткой был приглашен архитектор Мартин Заборовский, так что, возможно, именно он выстроил трехэтажный дворец [1]. Сохранился документ 1594 года, в котором Радзивилл Сиротка приказывает произвести с Заборовским окончательный расчет за каменные работы, сделанные в разные годы в Несвижском и Мирском замке [29].
Замок стал административным центром Мирского графства и княжеской загородной резиденцией. В подвалах и на первом этаже дворца находились хозяйственные помещения, кладовые с оружием, боеприпасами и продовольствием; на втором этаже жила прислуга и располагалась администрация Мирского графства, замковый суд и канцелярия, а третий, парадный, этаж предназначался для хозяев: там были устроены жилые покои — десятки богато украшенных комнат.
По моде того времени стены дворца и непосредственно примыкающих к ним башен (юго-восточной, северо-восточной и северо-западной) оштукатурили. Обрамления окон и дверей были вытесаны из серого песчаника, который доставлялся из Галиции. На фризах порталов вывели изречения из античных или библейских текстов или прославления владельцев Мирского замка. В обработке наружных стен была применена техника «сграффито», дающая выразительный рисунок. Лестницы, ограды мостков и балконов украсили каменными балясинами и перилами. Башни и стены замка, которые не примыкали к новым жилым корпусам, были оставлены почти без изменений [4].
Масштаб и скорость строительных работ впечатляют и сегодня. Словно по взмаху волшебной палочки дворец наполнился оружием, съестными запасами и множеством вещей для комфорта его владельцев. Комнаты засияли всеми красками. Интерьеры третьего этажа были отделаны мрамором, украшены скульптурами, гобеленами и картинами. Двери изготавливались из ценных пород дерева. Дубовые балки потолков покрывались резьбой или росписями, имитирующими резьбу. На стенах появилась живопись в стиле «гризайль». Громадные камины и печи покрылись кафелем с многоцветной глазурованной плиткой с рельефным рисунком (если на первом этаже изразцы были терракотовые, а на втором однотонные с глазурью, то на третьем непременно полихромные [4]). Оформление интерьеров прекрасно дополняла богатая мебель, произведения искусства и другие предметы внутреннего убранства. Личные покои князя Радзивилла Сиротки были обиты черным моравским сукном: черный стал основным цветом, символизирующим его преданность идеалам Контрреформации, а также траур по любимой жене [5].
Окрестности Мира на карте Т. Маковского (1613 год, Амстердам) [4]:
Как уже говорилось, Радзивилл Сиротка немало путешествовал. Во время своих странствий он видел усадьбы богатой аристократии, в частности в Италии. Кроме того, князь читал ренессансные трактаты, и свое главное родовое имение в Несвиже обустраивал как раз по итальянскому образцу. Эти веяния нашли отражения и в обновленном облике Мирского замка. От итальянского ренессанса была позаимствована ритмичность расположения окон и дверей, одинаковость высоты помещений на этаже, лестницы. Элементы готики, впрочем, тоже сохранились: старая система кладки, своды, сложные переходы по башням и галереям [24].
Все эти архитектурные и художественные решения позволяют говорить о Мирском замке как об относительно редком и наиболее ярком примере белорусского ренессанса, в котором сочетались черты поздней готики и ренессанса [5]. От дворцовых украшений времен Сиротки сохранилось немного: несколько каменных профилей от окон и множество фрагментов кафеля от печей, найденных археологами [10]. Изразцы, найденные во время археологических исследований Мирского замка [5]:
Итак, на смену готике пришел Ренессанс. Мирский замок теперь стал одним из самых выразительных в Беларуси образцов частного замкового строительства. В то же время после возведения замка в Несвиже в конце XVI– начале XVII века главную княжескую резиденцию Радзивиллов перенесли туда. Мирский же замок стал загородной резиденцией князей, своего рода дачей, и во время их отсутствия пустовал [6].
Оборонительные возможности замка перед лицом развития артиллерии
При Радзивилле Сиротке в конце XVI – начале XVII века к въездной башне Мирского замка был пристроен барбакан (предбрамье). Барбакан позволял дополнительно укрепить замковые ворота, что было весьма актуально, учитывая стремительное развитие артиллерии. По данным археологов ([8]; [17]), барбакан имел вид подковообразного кирпичного сооружения толщиной 1,25 метра, верх которого заканчивался зубцами и бойницами с боевой галереей (помостом для стрелков). Внутри барбакана был вырыт котлован глубиной 2 метра, который закрывался подъемным мостом. Когда мост опускали, он ложился на опорный выступ в фундаменте барбакана и служил настилом для проезда в замок. Снизу мост был окован железными полосами и шипами. Когда мост поднимали, он полностью закрывал, «баррикадировал» главный въезд в цитадель [2]. Вход в барбакан предварялся порталом из серого камня. Помимо обеспечения дополнительной защиты барбакан мог служить ловушкой для прорвавшегося вовнутрь неприятеля: он оказывался в замкнутом простреливаемом пространстве [12]. Барбакан просуществовал вплоть до второй половины XIX века [2].
Вид Мирского замка в XVII веке (М. Ткачев) [5]:
Сравнение облика Мирского замка в XVI и XVII веке (источник [9]; реконструкция по материалам М.А. Ткачева):
Теперь, когда Мирский замок превратился в жилую резиденцию и вряд ли мог выдержать натиск артиллерии, оборонительную функцию решено было возложить на земляные валы, которые насыпали вокруг замка. Высота валов достигала 9 метров, а по углам располагались небольшие оборонительные бастионы. Это сооружение, имевшее вид неправильного по форме четырехугольника размером 170х150 м, стало первой линией обороны Мирского замка [17]. Бастионные укрепления были насыпаны из глины, земли и крупного песка. За валами был выкопан ров, наполненный водой [5]. К валам подходили соединенные каналами водоемы.
Реконструкция Мирского замка, на которой показан барбакан (М. Ткачев) [8]:
На север от вала рядом с Мирским замком в начале XVII века был разбит итальянский сад ренессансного типа. Площадь сада составляла около 2 га [5]. Деревья сначала высаживались преимущественно местных пород (яблони, груши, вишни), позднее появились и экзотические виды. От внешнего мира сад отделяли каналы и липы, а цветочный ковер был повернут к дворцовым окнам. Цепочка прудов отражала замок в своих зеркалах.
С востока был заложен фольварк (хозяйственная усадьба) с многочисленными служебными постройками, а в трех километрах от замка устроили зверинец. Создание фольварка создало условия для автономного обеспечения замка питанием и фактически превратило резиденцию в самодостаточную хозяйственную единицу [5].
Мирский замок во время войн XVII – XVIII вв. Запустение и восстановление замка
После многочисленных преобразований конца XVI – начала XVII века Мирский замок на несколько десятилетий погрузился в мирный сон, который прервала тринадцатилетняя войны Речи Посполитой с Российским царством (1654-1667).
Учитывая, что сооружение, вероятнее всего, строилось не военных целей, следует отметить горькую иронию судьбы: начиная с войны 1654-1667 годов и до кампании 1812 года Мирскому замку пришлось участвовать практически во всех войнах, которые происходили на территории нынешней Беларуси.
В 1655 году замок был взят штурмом и опустошен казаками гетмана Ивана Золоторенко и войском царского воеводы Алексея Трубецкого. В августе 1660 года был составлен лаконичный горький инвентарь: «Сам замок ремонта и присмотра требует, везде течет, во всех покоях верхних и средних, а также в подвалах дверей и окон нет. В замке осталось 35 мушкетов, одна гаковница, пять железных дверей в хранилище и одни двойные для подвала, одна наковальня и один замковый котел» [2].
Около 30 лет после этого Мирский замок простоял в запустении. Лишь в 1680 году Катажина Радзивилл Собеская (1634-1694) после смерти своего мужа Михаила Казимира Радзивилла приступила к восстановительным работам. Инвентарь года 1688 показывает Мирский замок как роскошный дворцово-замковый комплекс, в котором удачно сочетались элементы военного зодчества и величественность пышной дворцовой постройки.
Однако грянула Северная война 1700-1721 годов. В 1706 году в Мир ворвались войска шведского короля Карла XII. Горело местечко, горел и сам замок. В итоге было разрушено всё, что еще недавно удалось восстановить Катажине. В инвентаре 1719 года сказано, что «все комнаты разрушены и пусты... нет ни дверей, ни железа, также нет ни одного окна... Все пять башен, то есть под брамой и четыре по углам, покрыты дранкой и требуют ремонта» [24].
Былую роскошь Мирскому замку вернул его новый владелец — Михаил Казимир по прозвищу «Рыбонька» (1702-1762). Были переделаны покои третьего княжеского этажа, и вместо однотипных и в основном квадратных в плане помещений появилась анфилада из залов разных размеров. Переделывались внутренние перегородки, менялось направление лестниц. В 1730-х годах в замке появились Парадный зал, Портретная галерея, Танцевальный зал, украсившиеся дубовыми паркетными полами, золочеными потолками, шпалерами, превосходной мебелью, картинами, фарфором и фаянсом. Многие изысканные дорогостоящие предметы в интерьерах Мирского замка были сделаны на мануфактурах самих Радзивиллов.
Во всех покоях, судя по старинным описаниям, непременно были печи и камины, лепной потолок с позолотой, богатый паркет, филенчатые двери. Всего в замке было шестнадцать каминов и семнадцать печей различной формы и цвета [24]. При этом огромный каменный замок использовались главным образом для проведения различных приемов, а функцию жилого дома и места уютного внутрисемейного общения выполнял выстроенный на территории усадьбы деревянный особняк [5].
При Рыбаньке обрел новую жизнь и «итальянский» сад. Появились утепленные оранжереи для экзотических растений. Инвентарные описания XVIII века указывают, что в саду было около 400 редких деревьев [2], выращиваемых «в бочках в бревенчатой оранжерее и летом выставляемых на открытый воздух» [24]. Здесь росли апельсины, лимоны, мирт, кипарис, фиговые деревья, итальянский орех, лавр и самшит.
Один из сыновей Рыбоньки Кароль Станислав Радзивилл по прозвищу «Пане Коханку» («господин любимый») (1734-1790) жил в Мирском замке с 1754 по 1762 год, устраивая шикарные балы и созывая многочисленных гостей на охотничьи забавы. В 1785 году Пане Коханку принимал в замковых покоях короля Станислава Августа. Монарший визит дал тогдашним мемуаристам и авторам хроник повод для рассказов о неисчерпаемых богатствах Кароля Станислава Радзивилла, которые затмили блеском самого короля (каламбур напрашивался сам собой).
Сохранилось описание празднования Нового 1761 года, которое продолжалось в Мирском замке с 23 декабря до 4 января следующего года: в первый день встреча гостей за городом, салют из пушек на бастионах, а вечером ужин о поздней ночи. На следующий день с утра охота, новые гости, ужин. Назавтра — опять тосты, стрельба из пушек, а вечером — бал до самого утра. Через два дня именины княжны: с утра залпы из пушек и салют из ружей в замковом дворе, а вечером — маскарад, опять же до утра. На следующий день уезжают одни гости, приезжают другие, и так продолжается до праздника трех королей (4 января) [29].
Упадок Мирского замка после ликвидации Речи Посполитой
После смерти Пане Коханку все наследственные владения перешли к его племяннику — Доминику Иерониму Радзивиллу (1786-1813). В 1794 году Мирский замок взяли штурмом царские войска во время восстания Тадеуша Костюшко. В 1795 году местечко Мир вошло в состав Российской империи.
Ко времени падения Речи Посполитой в конце XVIII века Мирский замок перестаёт быть средневековым символом, импозантной магнатской резиденцией. Разоряются радзивилловские мануфактуры, замок приходит в запустение, что фиксируется в инвентарных записях : «Портретный зал, в нем шесть окон без стекла, весь опустошен, потолок с французской позолоченной лепниной полностью осыпался. Крыша оранжереи частью исправлена соломой, остальная крыта гонтом, совсем уже старая, поддерживается на одних только подпорках, в стене от сада двадцать шесть окон с полностью побитым стеклом» [29].
В дневнике неизвестного русского офицера, посетившего Мир в феврале 1797 года, читаем: «Запущенный Мирский замок с башнями по углам его и с подъемными мостами приводит на память давно минувшие дни злых духов и благородных рыцарей» [24]. В 1802 году в своих «Записках» русский ученый-минералог и химик В. М. Севергин отмечает Мир как «небольшой изрядный городок, где находится ветхий замок кн. Радзивилла» [24]. При составлении описи 1805 года по третьему этажу было указано: «Зала два, комнат четырнадцать, из них больших — восемь, меньших — четыре, а две совершенно обрушились — одни только стены. В залах и в двенадцати комнатах потолки гипсовые, по большей части опавшие. Пол в шести комнатах дощатый, а остальные совсем без пола» [24]. Также было помечено, что итальянский сад «пустой, никаких фруктовых деревьев не имеет, кроме липовых аллей» [24].
Но всё-таки наиболее значительные разрушения Мирского замка исследователи связывают с событиями 1812 года.
Летом 1812 года под стенами Мирского замка происходили ожесточенные бои между казаками атамана Платова и французской кавалерией («бой под Миром»). А в ноябре 1812 года в Мире состоялось сражение между армией адмирала Чичагова и разрозненной группой солдат и офицеров французской армии.
Армия Чичагова сожгла Мирский замок, подорвала пороховой склад в северо-восточной башне. Дворец был разграблен, разрушен и сожжен, повреждены внешние бастионные укрепления [5].
Витгенштейны: Новые владельцы Мирского замка
Доминик Иероним Радзивилл во время войны выступил на стороне Наполеона (местное дворянство мечтало о былой независимости Речи Посполитой и поддерживало Бонапарта в борьбе с Россией). Будучи смертельно ранен в одном из сражений, Доминик Радзивилл погиб во Франции в 1813 году.
Его имения император Александр I в 1814 году разделил на две части. Одну часть вместе с Миром и Несвижем получил троюродный брат Доминика, князь Антоний Радзивилл, а другую — дочь Доминика, Стефания Радзивилл (1809-1832), которая воспитывалась в Петербурге под покровительством императрицы Марии (матери Александра I) и с годами превратилась в одну из первых красавиц того времени.
В 1828 году Стефания вышла замуж за царского адъютанта графа Льва Петровича Витгенштейна (1799-1866) — декабриста и одного из богатейших помещиков Российской империи. Начавшиеся судебные разбирательства между ними и Антонием Радзивиллом по поводу земель Мирского графства закончились лишь в 1846 году, когда Стефании уже не было в живых. В итоге Мирские владения перешли ко Льву Витгенштейну. К тому времени он, вторично женившись, уехал за границу и жил в основном в Германии.
В 1870 году на четырех башнях (кроме взорванной северо-восточной) соорудили шатровые крыши [15]. Позднее восстановили и дворец. В целом же сам замок находился в сильном упадке. По состоянию на 1885 год «единственным жителем замка был сторож, живший в более-менее приспособленной для жилья башне» [5].
Однако владеть замком роду Витгенштейнов пришлось недолго. Согласно закону 1887 года, иностранцам (в том числе дочери Льва и Стефании, немецкой подданной Марии Гогенлоэ-Шиллингсфюрст) запрещалось владеть землями на территории Российской империи. Поэтому Витгенштейны были вынуждены их продать.
Изображения Мирского замка в XIX веке
Первые печатные изображения Мирского замка относятся к середине XIX века. В книге Ф. М. Собещанского, изданной в Варшаве в 1849 году, вместе с рисунком замка появилось и первое его описание как памятника архитектуры [5].
Через четыре года знаменитый белорусский и польский поэт, историк и переводчик Владислав Сырокомля посвятил Мирскому замку несколько страниц в книге «Путешествие по моим былым околицам» (1853). В качестве заглавной иллюстрации было взято романтическое изображение замка, выполненное другом поэта — художником Канутием Русецким. На рисунке видны три башни западного фасада и северо-восточная башня. Главная особенность иллюстрации в том, что на ней показан барбакан (предбрамье), пристроенный к центральной башне в начале XVII века и существовавший до второй половины XIX столетия [13].
В конце 1860-х годов Мирский замок со всеми пятью башнями запечатлел известный рисовальщик архитектурных памятников и пейзажей Наполеон Орда.
Замок изображен как романтическая руина, а на дальнем плане виднеется фруктовый сад.
Святополк-Мирские и Мирский замок
Распродажа имения Витгенштейнов-Гогенлоэ (называлось оно Замирье) вызвала небывалый ажиотаж среди русской аристократии. В 1891 году Мирский замок и земли приобрел за огромную сумму герой Крымской войны, наказной (назначенный) казачий атаман Войска Донского князь Николай Иванович Святополк-Мирский (1833-1898).
Что характерно, никакого отношения к названию местечка Мир их двойная фамилия не имела: князья Святополк-Мирские носили ее задолго до поселения в Мире (фамилия происходит от населённого пункта Миоры). Видимо, князя привлекло созвучие названия местечка с его фамилией.
Мирский замок в конце XIX века был не в лучше состоянии. Одно из свидетельств того времени сообщает: «В настоящее время в замке живут только летучие мыши и совы, да летом аисты как бы несут сторожевую службу, важно шагая по недоступным вершинам стен радзивилловского дворца» [1].
Приехав в Мир с женой Клеопатрой и пятью сыновьями, 58-летний генерал восстанавливать старый замок не стал. Зато на противоположной от замка стороне построил спиртовой завод и двухэтажный дворец в стиле эклектики (дворец сгорел в 1914 году, сейчас его планируют восстановить). Дворец Святополк-Мирских стал жилой резиденцией семьи и основным композиционным центром дворцово-паркового ансамбля в Мире.
Перед новым дворцом до самого замка был устроен пейзажный парк английского типа. Вместо пяти заросших прудов в пойме ручья и вырубленного сада появился водоем с островами. Бастионные укрепления при этом были срыты [15]. Водоем к югу от Мирского замка сохранился до наших дней. При устроении водоема росший на этом месте яблоневый сад безжалостно вырубили, с чем связана одна из легенд Мирского замка.
В глубине парка вдова князя Клеопатра после его смерти возвела родовую часовню-усыпальницу Святополк-Мирских.
Сам Мирский замок всё это время пустовал. От дворцовых корпусов остались только наружные стены с зияющими пустотами на месте окон и дверей. Из-за накопившегося мусора не было видно подвалов. Относительно целыми оставались лишь четыре башни. Пятая, северо-восточная, ослабленная еще при первой перестройке, раскололась [24].
Состояние Мирского замка в конце XIX века (источник фото [5]):
Последний владелец Мирского замка — эрудит, полиглот и отставной дипломат Михаил Николаевич Святополк-Мирский (1870-1938) вел уединенный образ жизни. Пережив в молодости любовную историю [1], он был убежденным холостяком, балов не любил (правда, иногда устраивал застолья) [14].
Поскольку дворец, построенный в Мире его родителями, сгорел в Первую мировую войну, князь Михаил в 1921 году обосновался в юго-западной башне старого полуразрушенного замка. Велел прорубить в южной крепостной стене окно и сделать балкончик, куда часто выходил с подзорной трубой любоваться видом на озеро [14].
Поселившись в замке, Михаил Николаевич решил привести его в божеский вид и начал неспешный ремонт («в год по комнате»). «Кто строит замок — тот не умирает!» — говаривал он [6]. Решение о восстановлении старого замка было принято несмотря на то, что свободных средств у князя было не слишком много [31]. Но романтизм — на то и романтизм, чтобы поступать вопреки обстоятельствам.
Князь подыскал толковых управляющих, наладил работу мастерских, заложил парк, оранжерею, благоустроил дороги. Пригласил специалистов из разных городов для ведения хозяйства и строительства [14]. Временами он любил философски изрекать: «Мирский замок — это руина, а другая руина — я сам» [1].
Хотя реставрация шла весьма умеренными темпами, навестивший князя в 1929 году президент Польши высоко оценил усилия Михаила Николаевича по восстановлению Мирского замка из руин.
Реконструкция замка в 1920-е годы (источник фото [5]):
Работы по восстановлению замка начались в 1922 году и продолжались 16 лет. Князь пригласил в Мир варшавского архитектора Теодора Бурша, который разработал проект реконструкции и интерьеры нескольких комнат. Из всех залов, спроектированных Бурше, удалось завершить только Слоновый (по некоторым сведениям, в нем планировалось установить камин с резными слонами). Все комнаты старались обеспечить необходимыми бытовыми удобствами: были подведены вода и электричество, канализация, работал телефон — редкость по тем временам. В замке у князя была ванна, в которой с его разрешения мылась даже прислуга. Имелись также легковой и грузовой автомобили, хотя сам князь предпочитал им конную повозку с шестью лошадьми [14].
Изменения, которые Мирский замок претерпел при Святополк-Мирских, прослеживаются в работах белорусского художника Язепа Дроздовича, который в 1927 году создал ряд изображений памятника [13]:
На одном графическом листе мы видим восточный фасад с частью дворца и юго-восточной башней. На другом замок представлен с южной стороны, виден пруд и башни замка (на северо-восточной башне заметен раскол, образовавшийся после взрыва 1812 года). На третьем рисунке, сделанном с северной стороны, показаны башни западного фасада и северный корпус дворца с пустыми оконными проемами.
Михаил Святополк-Мирский жил в Мирском замке до своей смерти в 1938 году. Он хотел завершить реконструкцию замка, но успел частично отремонтировать только восточный корпус дворца, две южные башни и часть северо-западной башни, что, согласитесь, тоже немало.
Вид Мирского замка с южной стороны на открытке 1930-х годов (источник [12]):
Мирский замок, центральная и юго-западная башни (фото 1910-1930-х гг., источник [4]):
Перед смертью князь Михаил Святополк-Мирский поехал лечиться в Варшаву, но врачи не сумели ему помочь. Он умер в 1938 году. Запаянный гроб с телом привезли в Мир на машине. Похоронная процессия несла факелы и была весьма длинной: проводить князя в последний путь пришли не только местные жители, но и знать со всей Польши [14].
Князь Михаил не оставил потомков, и в 1938 году Мирский замок перешел к его племяннику Александру Дмитриевичу Святополк-Мирскому. Тот приехал сюда из Румынии, но толком не успел вступить в права наследства. С приходом на земли Западной Белоруссии Красной Армии в сентябре 1939 года он был арестован и заключен в лагерь на 8 лет [4]. В 1942 году Александр Дмитриевич попал под амнистию и был освобожден. Через несколько лет вместе с семьей он перебрался в Испанию, где последний владелец Мирского замка умер в 1984 году в возрасте 85 лет.
Мирский замок во время и после Второй мировой войны
Во время Великой Отечественной войны с мая по август 1942 года в Мирском замке находилось гетто, куда фашисты согнали около 800 местных евреев. Среди узников была создана группа сопротивления. 9 августа 1942 года удалось бежать более 250 евреям. Через три дня оставшиеся в гетто люди были расстреляны фашистами в лесу неподалеку от Мира.
Колонна немецких машин у Мирского замка, 1941 год (источник фото [4]):
После освобождения Беларуси в июле 1944 года в замке нашли приют местные жители, чьи дома были разрушены в войну. В старинном замке топили буржуйки, держали коров, свиней и кур, хранили сено. Всё это не могло не привести к утрате аутентичных интерьеров.
Вид юго-западной башни замка в 1950-е годы (источник фото [5]):
Последняя семья выселилась из Мирского замка в 1962 году.
Реставрация Мирского замка
В 1950-е годы в замке работал архитектор А. Е. Митянин, занимавшийся научным исследованием исторического сооружения и подготовкой обмеров. Вскоре началось изучение памятника с целью его реставрации, в 1971 году была выполнена временная консервация стен [5].
Замок во время консервации, 1971 год (источник фото [31]):
Реставрационные работы в Мирском замке начались в 1983 году. В 1989 году был утвержден проект реставрации замка, предусматривающий организацию музейной экспозиции. В 1993 году «за реставрацию и приспособление Мирского замка» музейным комплексом был получен диплом Europa Nostra.
О состоянии Мирского замка на начало 1980-х позволяет рисунок Михаила Карпука (1983 год) [13]. Почти весь дворец вдоль северной и восточной стены замка остался без перекрытий: лишь стены с оконными проёмами. Северо-восточная башня имеет крышу, установленную во время консервации 1970-х годов.
В 1993 году с большой пышностью открылась первая экспозиция в юго-западной башне. В 2006 году началась активная реставрация Мирского замка. В 2007 году была создана Научно-творческая группа по музеефикации Замкового комплекса «Мир», включившая ведущих историков, искусствоведов, археологов Беларуси. В 2008 году была утверждена уточненная Концепция музеефикации замкового комплекса «Мир» [4].
Замок во время реставрации, восточная сторона, 2005 год (источник фото [5]):
Наконец, 16 декабря 2010 года после длительных реставрационно-восстановительных работ состоялось торжественное открытие замкового комплекса «Мир» в полном объеме. В 2008 году была закончена реставрация часовни-усыпальницы князей Святополк-Мирских. В будущем планируется восстановить итальянский сад и английский пейзажный парк, а также дворец Святополк-Мирских.
В 2000 году Мирский замок был внесен в Список Всемирного наследия ЮНЕСКО. В 2002 году у входа в замок появилась соответствующая мемориальная доска.
Сегодня Мирский замок — чуть ли не самый раскрученный туристический объект в Беларуси, пользующийся известностью во всем мире. Благодаря этому величественному сооружению в небольшой белорусский посёлок Мир ежегодно десятки тысячи туристов из самых разных стран.
В то же время реализованный проект реставрации Мирского замка продолжает вызывать критику среди специалистов [5]. Отмечается, что замок стал выглядеть слишком чистым и розово-гладким, утратив аутентичность и романтику. Другой момент касается окружающей среды памятника: элементы благоустройства (тротуарная плитка, заборы, входной павильон, дорожки) не соответствуют духу памятника.
Реализованная в Мирском замке музейная экспозиция тоже вызвала множество нареканий среди экспертов. Залы наполнились большим количеством случайных и ненужных вещей и муляжей (копиями, репродукциями, макетами других замков), что не создаёт исторической атмосферы. Многие экспонаты стилистически не связаны ни с интерьерами, ни с историей самого замка.
Посещение Мирского замка: часы работы, цена билетов, как добраться и прочие полезные детали для туристов
Стоимость входных билетов в Мирский замок составляет 70 тыс. белорусских рублей для взрослых и 35 тыс. белорусских рублей для школьников и студентов (в переводе на российские рубли это около 250 и 125 рублей соответственно). Цена билетов приводится по состоянию на 2014 год.
Для желающих есть аудиогид. Для желающих есть аудиогид. Помимо аудиогида, можно руководствоваться объяснительным текстом на русском и белорусском языках, который имеется в некоторых залах.
Билет дает право на посещение всех объектов замкового комплекса Мир: в стоимость билета входит основная музейная экспозиция плюс экспозиция «Мирское гетто», а также подъем на две башни, осмотр тюремного подвала с орудиями пыток и посещение усыпальницы князей Святополк-Мирских.
Каждый последний понедельник месяца Мирский замок можно посетить бесплатно.
Режим работы Мирского замка: музейный комплекс открыт для посещения ежедневно: с понедельника по четверг с 10:00 до 18:00 (касса работает до 17:20), с пятницы по воскресенье — с 10:00 до 19:00 (касса до 18:20). Санитарные часы: с 9:00 до 13:00 последний вторник месяца.
Как и Несвижский замок, Мирский лучше посещать в будний день. В остальные дни в замке гораздо больше туристов, суеты и очередей. Самым загруженным днем традиционно является суббота.
Фотографировать в Мирском замке разрешается. За право фотосъемки отдельно платить не требуется, но снимать со вспышкой запрещено.
На кассе, помимо входных билетов, продаются диски, книги, путеводители, сувениры, карты. Отдельный сувенирный магазин есть и во дворе замка:
Кроме того, на площадке у стен замка разместился своего рода сувенирный рынок: тут много палаток с сувенирами, парочка летних кафе и лотков с пивом, мороженым и прочими закусками. На этом сувенирном рынке можно приобрести всевозможные магниты, тарелочки и кружечки с видом Мирского замка разного качества, но по крайней мере по очень доступной цене (примерно от 20 рублей на российские деньги).
О том, как самостоятельно добраться до Мира и Мирского замка на общественном транспорте, читайте тут.
Наряду с музеем, в замке работает созданы отель, ресторан и конференц-зал.
♦♦♦♦♦♦♦
См. также:
- Прогулка по улицам Мира. Достопримечательности Мира. Что посмотреть, кроме замка?
- Мир и Мирский замок. История местечка Мир
- Отзыв о посещении Мирского замка (часть 1: замок снаружи и прогулка вокруг замка)
- Отзыв о посещении Мирского замка (часть 2: интерьеры замка)
♦♦♦♦♦♦♦
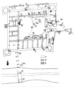
Карта поселка Мир (Белоруссия) с достопримечательностям
Поселок Мир невелик, и заблудиться в нем сложно. Тем не менее, предлагаем вам скачать туристическую карту Мира с достопримечательностями.
На карте обозначена также автобусная станция Мира, куда прибывают автобусы из Минска и других городов Белоруссии. Подробнее о том, как на общественном транспорта добраться до Мира и Мирского замка, читайте тут.
Еще одна карта поселка Мир (с официального сайта Мирского замка):
Достопримечательности Мира: что посмотреть
К достопримечательностям белорусского городка Мир относятся:
- разумеется, главная достопримечательность Мира — Мирский замок, и его стоит посмотреть в первую очередь; помимо собственно замка в комплекс входят живописные парки и пруд, а также часовня-усыпальница князей Святополк-Мирских. Другие интересные места Мира:
- центральная площадь 17 Сентября (бывшая Рыночная) с частично сохранившейся исторической застройкой
- ансамбль бывшего синагогального двора
- частный музей «Мирский посад»
♦♦♦♦♦♦♦
Использованные источники:
1. Несвиж. Мир: путеводитель (Жемчужины Беларуси) / [текст: А. Г. Варавва; фото: С. М. Плыткевич]. - Минск: Рифтур, 2004.
2. Мирский замок. Дорога длиною в пять столетий: путеводитель /[текст под редакцией И. Н. Ложечкина, О. В. Новицкой, А. Н. Янушкевича ; фото: С. Плыткевич]. – Мн.: УП РИФТУР, 2013.
3. Достопримечательности Мира на Глобусе Беларуси
4. Официальный сайт Мирского замка
5. Мирский замок, статья в белорусской Википедии
6. Статья «Кто строит замок - тот не умирает»
7. Ю. Татаринов. Города Беларуси. Гродненщина. – Минск, 2009
9. Мирский замок: замки Беларуси
11. Мирский замок: дорогами Беларуси
12. Мирский замок на почтовых марках и старых открытках
13. Мирский замок как объект изображения с XIX по XX столетия
14. Последний владелец Мирского замка был убежденным холостяком
15. Мирский замок обзаведется подъемным мостом
16. Усыпальницу Святополк-Мирских откроют в 2008 году
17. Замки Беларуси - М.А. Ткачев, 2005
19. Мирский замок - между прошлым и будущим
20. Мирский замок в самом центре Европы
21. При реставрации Мирского замка допущены многочисленные ошибки
24. Мирский замок - В.В. Калнин - 1986 г
25. Какие сюрпризы готовит Мирский замок?
26. Множество неразгаданных тайн Мирского замка
27. Жизнерадостный замок эпохи сурового средневековья
28. Музей «Мирский замок», фото
29. Удивительная Беларусь. К 600-летнему юбилею Беловежской пущи. Несвижский дворец и Мирский замок – жемчуга Списка Всемирного культурного наследия ЮНЕСКО.
30. Мирский замок на Викимапии
31. Мирский замок: фотогалерея


5 ноября 2014 в 14:01
На самом деле очень величественное сооружение. 70 тыс. БР — это недорого. Но мне сам замок больше понравился снаружи, чем изнутри.
5 ноября 2014 в 14:03
Да, снаружи Мирской замок однозначно выглядит более аутентично, колоритно и величественно. С интерьерами всё не так однозначно.